Elevated Porosity - Parking & Gym Complex
Instructor: Julia Koerner ︎
Site: DTLA, CA US
Year: 2019 Spring
Individual Work
	Instructor: Julia Koerner ︎
Site: DTLA, CA US
Year: 2019 Spring
Individual Work
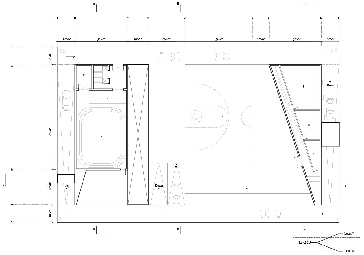
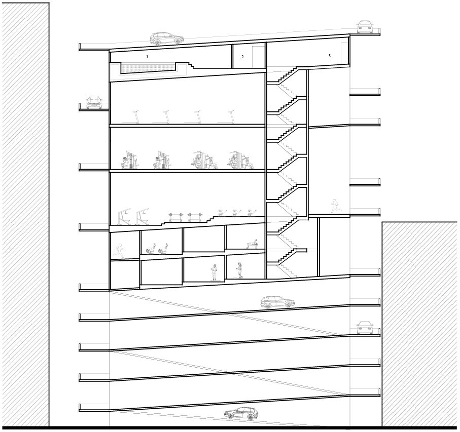
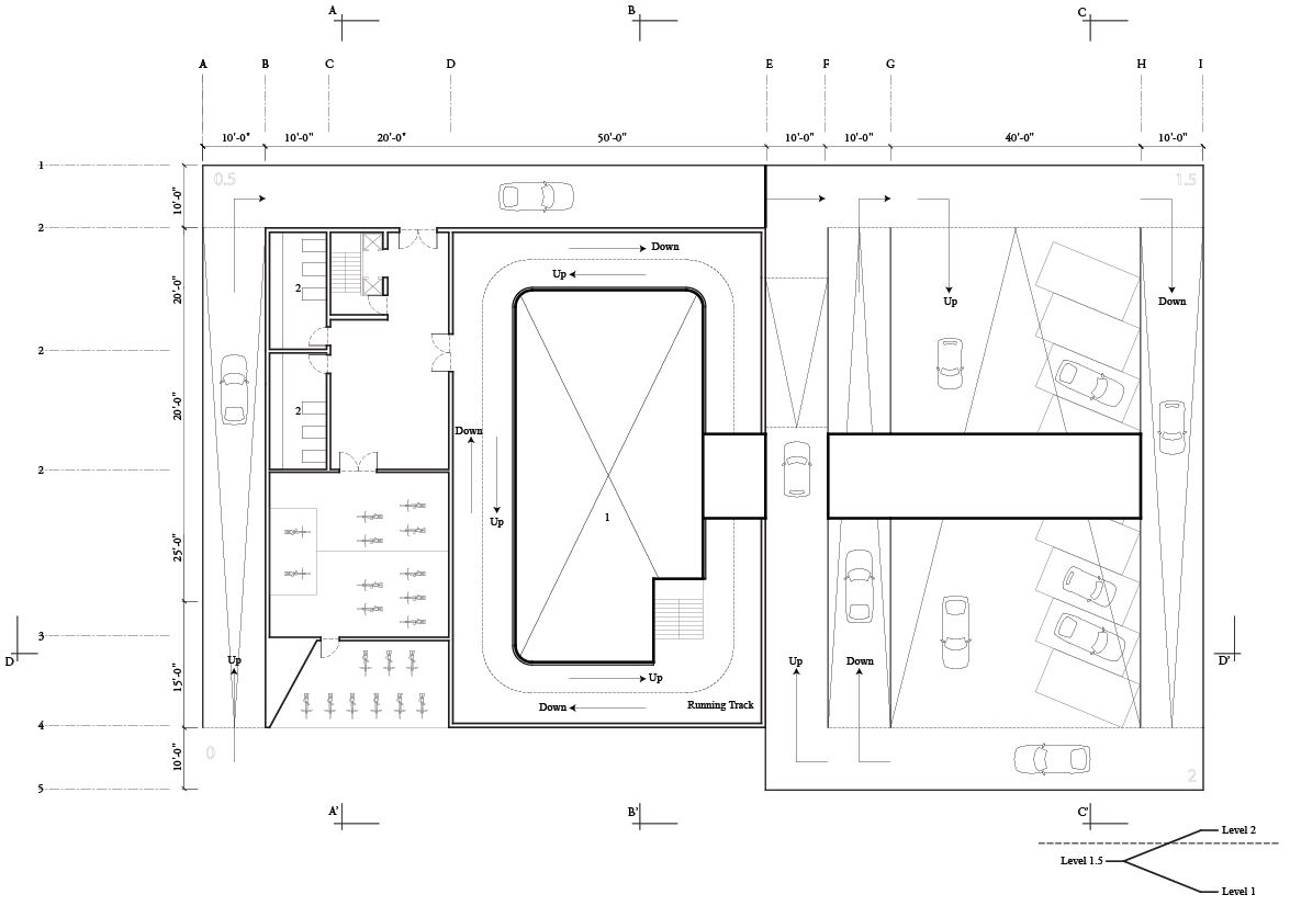
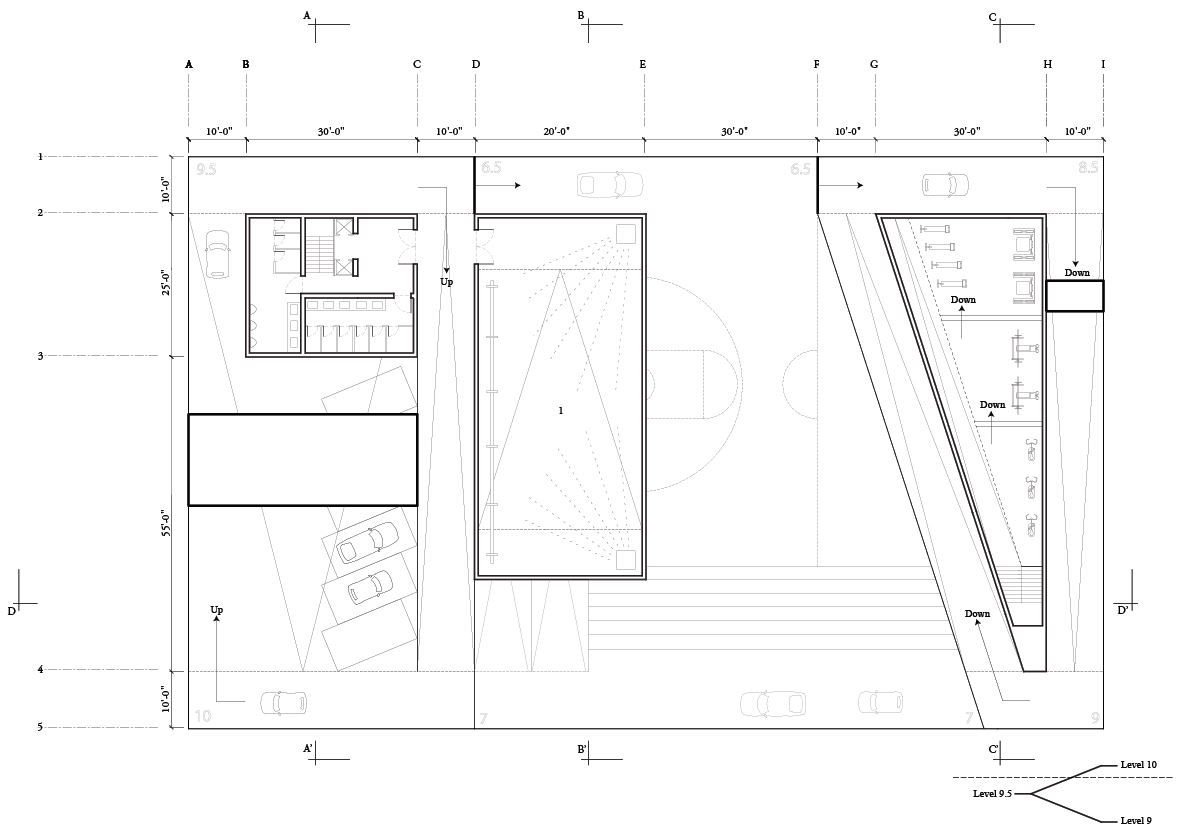
The project focuses on the sectional quality of program differentiate with flat floors and angled floors similar to parking hybridized with ramped floors and straight ramps. So some gym programs require a flat floor, but other programs can actually benefit from angled floors. I chose some of the programs into my building with larger scales, such as down-hill interior skiing, swimming pool from shallow to deep, and running track as well.
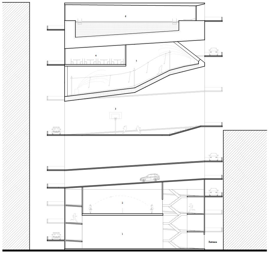
Another point is about how human circulation manipulates cars through the building. So the circulation organizes the building with those cantilevering ramps that are on the exterior of the building as a surface wraps the façade of the gym, so the ramps are eventually generating an enclosure as well.
	
Through the investigation of section and enclosure, I figured out that sometimes the ramps can squeeze the building tightly so that the programs would be narrow, and sometimes they squeeze loosely to create a wider space in the building. This moment not only provides drivers a different experience driving around between the corner and the wall but also makes people who are walking on the street have different opinions that there has or no functions behind the corner.
The ramps can go across the building to separate the gyms into small/ medium/ large scales. So sometimes the ramps can really be inside of the building. And people would have a view of cars running outside when they are exercising inside.
	Or with the ramps wrapping separately on different parts of the building which are going down here and going up on the other part but it doesn’t show in the physical model, with this technique, they can generate an extremely large void within the building, so that there are a lot of open outdoor programs inside the building. Then the moving cars, active basketball players, and seated audiences can exist in one space simultaneously, which responds to the site because the building looks like closed as a restrict level, but open towards to the surrounding buildings and itself.




